In samenwerking met Architectenburo Vorm3 BNA is een ontwerp voor de verbouw van het huidige meisjes gebouw tot stand gekomen.
Om inzicht in het ontwerp te geven is een 3d 'Artist Impression' gemaakt. Klik hier voor Artist Impressen.
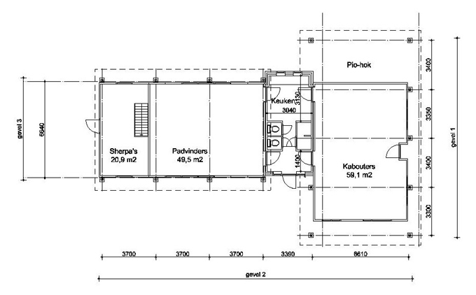
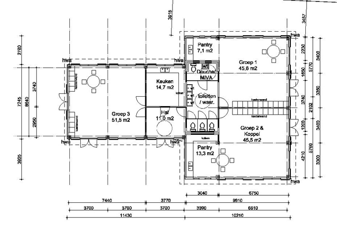
Tevens zijn er Voorontwerp (VO) tekeningen gemaakt. Op de tekeningen worden zowel de bestaande als nieuwe situatie afgebeeld.
De oude versus nieuwe situatie ...

De oude situatie met de speltaklokalen ...

En de situatie in nieuwe stijl ...

De oostgevel van ons oude pand ...

En natuurlijk de nieuwe gevel vanaf de oostzijde ...

En van de noordzijde ...
